Digitalisierung messbar gemacht!

Mit dem neuen digitalen Dashboard „DiDaSH“ (Digitales Dashboard Schleswig-Holstein) stellt der IT-Verbund Schleswig-Holstein erstmals eine zentrale und öffentlich zugängliche Übersicht zum Stand der Verwaltungsdigitalisierung im Land bereit. Das Dashboard macht transparent, wie weit die Umsetzung des Onlinezugangsgesetzes (OZG) in den…
Informationen zum Versand und Aufbau der Abgabenbescheide

Im Zuge der Umstellung der Finanzsoftware zum Jahreswechsel 2025/2026 verändern sich nicht nur Abläufe im Hintergrund – auch der Aufbau der Abgabenbescheide wird neu gestaltet. Die Bescheide für Grundsteuer, Gewerbesteuer sowie Verbrauchsabgaben erhalten ein übersichtlicheres Layout und eine klarere Struktur.…
Wichtige Hinweise zum Jahreswechsel 2025/2026 – Einschränkungen durch Umstellung der Finanzsoftware

Zum Jahreswechsel 2025/2026 stellt die Verwaltung ihre Finanzsoftware um. Ziel dieser Umstellung ist es, Verwaltungsprozesse künftig effizienter, schneller und serviceorientierter zu gestalten. Langfristig profitieren Bürgerinnen und Bürger unter anderem von kürzeren Bearbeitungszeiten, übersichtlicher gestalteten Bescheiden und der Grundlage für neue…
Baugrundstücke in Groß Rheide zu verkaufen

Die Gemeinde Groß Rheide bietet Baugrundstücke in der 1. Änderung und Erweiterung des B-Plans Nr. 2 – Baugebiet „Schmerkamp“ zum Verkauf an. Die Grundstücke sind voll erschlossenen. Größen der Grundstücke:Die Größen der Grundstücke sind dem beigefügten Grundstücksplan zu entnehmen. Kaufpreis:Der Kaufpreis…
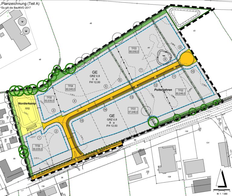
Gewerbegrundstücke in Erfde zu verkaufen

Die Gemeinde Erfde veräußert Grundstücke im Gewerbegebiet „Norderkamp“ an der B202 Der Kaufpreis beträgt 49 € / m² (voll erschlossen). Die Grundstücke sind zwischen 2.400 m² und 4.460 m² groß (andere Größen auf Anfrage). Glasfaser und Fernwärme sind im gesamten Gebiet…
Baugrundstücke in Stapel zu verkaufen

Die Gemeinde Stapel veräußert die folgenden Baugrundstücke im Baugebiet „Alte Kreisbahn“ (OT Süderstapel) Der Kaufpreis beträgt 105 € / m² (voll erschlossen). Sämtliche Informationen können Sie unter folgendem Link auf der Homepage der Gemeinde Stapel Bei Fragen wenden Sie…
Informationen zur Software-Umstellung in der Verwaltung

Seit den 90er Jahren nutzt die Verwaltung die Finanzsoftware CIP für das Haushalts-, Kassen- und Rechnungswesen (HKR). Diese Software ist jedoch technisch veraltet und erfüllt nicht mehr die aktuellen Anforderungen. Daher erfolgt die Umstellung auf eine moderne Nachfolgesoftware. Warum ist…
Neubau einer Mehrzweckhalle in Kropp

Die Gemeinde Kropp plant den Bau einer modernen Mehrzweckhalle, um dem steigenden Bedarf an Hallenkapazitäten gerecht zu werden. Mit Unterstützung von Bund und Ländern entsteht ein zentraler Ort für Sport, Kultur und Veranstaltungen, der sowohl den Bürgerinnen und Bürgern Kropps als auch…
Information zur Rechnungsstellung

Damit Rechnungen an die öffentlichen Einrichtungen im Amt Kropp-Stapelholm schnell und verlässlich bearbeitet werden können, ist ein einheitliches Vorgehen bei der Einreichung hilfreich. Im Folgenden erhalten Sie wichtige Hinweise, was bei der Rechnungstellung zu beachten ist.Rechnungsempfänger Für steuerliche Zwecke ist…
